The owners of this recently renovated family home engaged us to address the external spaces.
The owners wanted a safe swimming pool and lawn area for their young children and the front of the property to be designed in a traditional manner in keeping with the architecture of the home.
On the initial consultation we saw a further opportunity!
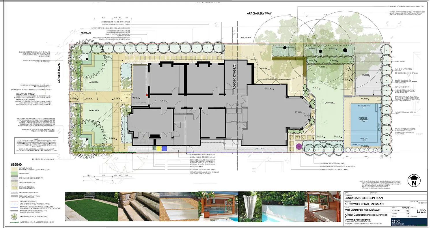
The house had no real space for an entertaining area at the rear but did have a large setback from the north side boundary with a large window viewing onto this location. By replacing the windows with period style concertinaed doors and incorporating a retractable shade structure we could create a side entertaining courtyard which was well integrated with the rear garden of the home. With the introduction of a built-in barbecue, benches and daybeds it would be an ideal area for adult entertaining and supervising children playing on the adjacent lawn area.
We provided privacy with the inclusion of a 2-metre-high dressed timber lapped and capped fence and hedge planting of Syzygium ‘cascade’ (cascading lillypilly).
The main pedestrian entrance to the property was set on two levels and mostly paved. We removed the paving, developed one level to incorporate a lawn area with period planting around and a traditional sandstone pathway central to the opening of the residence bisected with secondary paths leading to the sides of the home. We designed a period style timber fence and entry gate.
The rear garden area was designed as a large level lawn that wrapped around the home to link to the entertainment area.
The garage of the home protruded into the original rear lawn area creating a large niche at an upper level. We dropped this level to relate to the lawn and designed the swimming pool into this area. The levels change was resolved with the inclusion of a feature stone wall at the back of the swimming pool with traditional waterspouts along its length.
The sparkling water of the pool, with blue waterline tiles and a blue marble interior finish contrasts beautifully with the surrounding select grade white sandstone paving with a sunning area and shower at one end. Privacy has been created by Cupressocyparis Leighton Green (green cypress) and completes the creation a traditional home.




